摘要:本文介绍了国内某原油管线输油站场因输油泵机组安装于敞开式泵棚,在输油生产中输油泵机组及泵棚内其他输油设备运行产生较大噪音,从而造成该站厂界噪声超高的情况。为解决此问题,在不改变输油泵棚原有结构的前提下,使用具有隔声及吸声作用的隔声板对原有泵棚进行改造升级,并加装排气及照明系统,在保证安全生产及节约改造资金的前提下,达到了降低厂界噪声,并消除对周边居民影响的目的。
关键词:敞开式泵棚;输油泵机组;厂界噪声;隔声;治理;
国内油气输送管网近年来建设发展迅速,输油(气)站场作为油气管网的重要节点,担负着管网加压、加热的重要生产任务。站场内的大功率输油泵机组及相关输油设备在运行时不可避免的发出较大运行噪音,且目前国内输油站场多采用敞开式输油泵棚,如何进行厂界噪声控制及治理就成了亟待解决的难题。
1 应用背景
2017年,中国油气管道工程建设平稳推进,油气长输管道总里程累计约为13.31万千米,其中天然气管道约7.72万千米,原油管道约2.87万千米(已扣减退役封存管道),成品油管道约2.72万千米,管道建设加速向网络化方向发展。输油泵站内的泵机组等相关设备在运行时会发出较大噪声,且国内站场一般采用敞开式泵棚及露天阀组区。随着油气管网在东部人口密集地区的建设,输油站场安全距离以外不可避免的存在居民居住区域,且站场值班人员需24小时驻站工作,如何降低、治理厂界噪声,降低对驻站职工及周边居民工作、生活的影响,就成为了亟待解决的问题。
2 现状调查
国内某原油管线输油站场泵棚为钢结构,顶部为防雨彩钢板,尺寸为长18 米,宽15 米,高6.6 米,泵棚内布置有两台卧式水平中开式离心式输油泵(电机功率810 kW),SRB 型快开篮板盲式过滤器,还有管道、阀门等。输油泵棚距离北厂界5 米,北厂界外以西45 米处为居民区,离心泵的电机离北厂界较近。经当地疾病预防控制中心现场检测出具的报告显示:电机产生的噪声为109.3 dB(A),阀门和管道的噪声为88~92 dB(A),北厂界测定噪声93.3 dB(A)。输油泵棚以西80 米处噪声为70.9 dB(A)。
3噪声源分析
3.1 电动机产生的噪声
离心泵的电动机噪声为主要噪声,包括有交变电磁场产生的电磁噪声、动子与轴承摩擦的机械性噪声和电机尾部冷却风扇扇叶高速旋转产生的空气动力性噪声三部分。
3.2 阀门产生的噪声
阀门产生的噪声包括机械性振动噪声和流体动力性噪声。机械性振动噪声是阀体内压力的变化及气流的冲击使阀门的某些部件(阀柄、阀杆等)产生振动所致。流体动力性噪声是由于阀门节流时,流体在断面收缩处流速增高,在阀门的下游会产生强烈的湍流噪声。
3.3 管道噪声
液压系统的泵体噪声和阀门噪声主要沿管道传播,并透过管道壁面辐射出去。管道愈长愈粗,这种辐射也愈强。液体流经管道时,由于湍流和摩擦激发的压强扰动也会产生噪声。若管路设计不当,也能产生空化噪声。
4 噪声控制目标
输油站场厂界噪声控制目标的设立应遵循以下原则:
4.1 达到国家环境噪声标准为限,不宜过度采取降噪措施;
4.2 分清主次噪声源,针对主要噪声源采取降噪措施;
4.3 噪声控制设施不能影响设备正常运行,不应改变站场内主要生产设施布局,相关改动应符合各专业设计规范;
4.4 有利于改善驻站职工工作及生活环境;
4.5 对治理措施进行综合经济指标比较,节省治理经费;
4.6 注重噪声控制设施的景观性。
目前关于厂界噪声的国家标准主要有两个,分别是:《工业企业厂界环境噪声排放标准》[1]和《声环境质量标准》[2]。根据以上国家标准的有关要求,本次噪声治理的控制目标为:
厂界噪声执行《工业企业厂界环境噪声排放标准》中的2 类标准,即:昼间≤60 dB(A),夜间≤50 dB(A)。
居民区噪声执行《声环境质量标准》中的2 类标准,即:昼间≤60 dB(A),夜间≤50 dB(A)。
5 制定治理方案
根据对该输油站厂界噪声噪声源的分析,噪声由电动机、阀门、管道产生,其中输油泵机组电动机运行噪声为主要噪声源,而原有的钢结构敞开式泵棚无法对噪声进行有效隔断式是造成厂界噪声偏高的主要原因。因此,使用具有隔声功能的隔声板将输油泵机组封闭起来,以降低噪声的干扰是最经济有效的办法,可有效地控制噪声的外传,减少噪声对周围环境的影响。同时,因输油泵棚北侧距北厂界较近,降噪量要求较高,隔声间北墙采用内部带空腔的双层复合式结构,厚度为350 mm(结构见图1);隔声间东、西墙采用双层复合式结构,厚度为175 mm(结构见图2);考虑到噪声反射的影响,隔声间顶部使用吸声吊顶结构,厚度为100 mm(见结构图3);为验证该结构隔声间噪声治理效果,噪声治理小组按照1:50的比例制作隔声间等比例模型,并模拟该输油站站输油泵棚工况进行模拟噪声测试,经测试,内部带空腔的双层复合式结构的隔声量>55 dB(A),双层复合式结构的隔声量>35 dB(A),能够满足降噪设计要求。
图3 隔声问吸隔声顶结构图
考虑到增加隔声间后对输油泵棚内光照的影响,在隔声间东、西、南三侧安装8面隔声窗,使用双层中空隔声玻璃;增设防爆防振照明灯具8盏并在南侧墙体上安装隔声门2个,方便设备巡检人员进出。考虑到加装隔声间后有可能造成泵棚内油气的积聚速度加快,为防止出现安全生产事故,隔声间顶部安装5.5 kW防爆三相轴流风机两台(单台流量50000立方米/小时),用于泵棚内可燃气体的抽出,为减少排风机造成的二次噪声污染,加装钢制进风消声器2台(消声量35 dB(A))、排风消声器3台(消声量30 dB(A))。隔声间内所有电气设备均符合防爆要求,并使用阻燃电缆,电缆穿镀锌套管敷设。
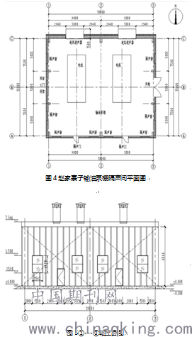
完成设计后的该泵站泵棚隔声间示意图如下:
.png)
图6 ○A~○C轴立面图
6应用验证
在完成该泵站站输油泵棚隔声间的结构方案设计并进行了模拟噪声试验后,噪声治理小组委托具有相关施工资质的安装公司按照设计方案进行了施工,施工完成后的隔声间整体效果如图:
.png)
图7 隔声间整体完工效果图
噪声治理工程竣工后,当地疾病预防控制中心对该输油站的厂界噪声进行了二次测试,在排除背景噪声值影响的情况下,厂界噪声满足《工业企业厂界环境噪声排放标准》中的2 类标准,即:昼间≤60分贝,夜间≤50分贝。居民区噪声满足《声环境质量标准》2 类标准,即:昼间≤60分贝,夜间≤50分贝。
7 推广价值
厂界噪声的治理已经成为输油站场运行中普遍性的课题。目前,国内油气管道发展迅猛,新建输油管线陆续投用,输油站场大多采用输油泵机组置于敞开式泵棚的安装方式,在运行过程中不可避免的产生噪声,采用轻质隔声板对原输油泵棚的侧向变形及承载力的影响很小,不破坏泵棚原有结构,经济性较高。同时针对不同距离、不同方向上的噪声控制要求,可以区分性的安装不同结构的隔声板,并使用喷塑厚压型孔板作为隔声间外面板,外观美观、耐用,整体隔声效果良好,可有效降低厂界噪声,具备较高的推广价值。
参考文献:
[1]GB12348-2008 工业企业厂界环境噪声排放标准.
[2]GB3096-2008 声环境质量标准.
作者简介:孙天择,1987年出生,男,汉族,籍贯山东聊城。2009年毕业于东华大学自动化专业,获工学学士学位,现任中国石化管道储运有限公司莘县输油站副站长,工程师,现从事管道储运机电仪类设备管理。
论文作者:孙天择
论文发表刊物:《基层建设》2019年第31期
论文发表时间:2020/4/13
标签:噪声论文; 隔声论文; 管道论文; 输油泵论文; 结构论文; 噪声控制论文; 阀门论文; 《基层建设》2019年第31期论文;
