【关键词】 防护 监测 施工技术
Key construction technology of low limit protective pile
Feng Hejie
(No.1 Engineering corporation of China Railway 20th Bureau Group Co.,Led,Suzhou,215153,China)
Abstract As an important life passage of urban development, the suitability of the protection works of municipal roads relates to the safe operation of municipal roads and the safety of people's lives and properties, the selection of appropriate equipment and construction method is of great significance to ensure the safety and smooth construction of protection works. Taking the construction of protective pile on the east side of Sunshine Avenue as an example, this paper explains the traffic diversion, equipment selection, construction scheme and construction key points, and provides reference for similar low limit protective pile construction in the future. Key words Protection Monitoring Construction technology
市政主干道防护工程施工中,由于受周边环境、交通流量等因素影响,通常采用交通导改、合适设备的方法,提高安全性能、缩短工期。因此做好低限界条件防护桩施工关键技术研究显得尤为重要。
1 工程概况
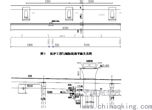
阳光大道位于武汉市江夏区,武咸城际铁路以桥梁的形式沿阳光大道东侧绿化带和非机动车布设,二者走向平行。因四环线主线桥梁上跨阳光大道同时从武咸城际299#~301#墩间分幅下穿,导致净空不满足通行要求,对阳光大道进行下挖改造,以满足城市主干路净空4.5m的要求。阳光东侧防护工程采用防护桩与重力式挡土墙进行防护,防护桩[1]为连续钢筋混凝土桩,直径φ1.0m,桩长分别为6~8.5m。
.png)
图2 防护工程与城际铁路立面关系图
2 施工方案的选择
防护桩一般采用人工挖孔[2]、机械钻孔,考虑桩径和孔深、地下水等因素影响,人工挖孔一般适用于桩径不小于1.2m、孔深不大于15m且地下水较小的地质;机械钻孔应用范围广,适用于各种复杂作业环境,在施工应用中较为广泛。
根据阳光大道东侧防护桩紧邻武咸城际铁路,首先考虑选用人工挖孔,但受桩径偏小及地方政府明文规定不允许挖孔桩,最终确定选用机械钻孔,因此选择合适高度及施工能力的施工机械至关重要。
3 交通导改及设备选型
3.1 交通导改
阳光大道为江夏进入武汉的市政主干道[3],由于阳光大道在区域内交通功能较强,为满足施工期间不阻断交通,对阳光大道东侧进行打围,打围区域346m长*23m宽。
3.2 钻机选择
防护桩施工现场受限因素主要有两点:一是防护桩距离武咸城际铁路承台边缘1.5~2m,且处于铁路箱梁翼缘边缘投影下,桩顶距离武咸城际铁路梁底距离为10~12m,邻近营业线施工安全要求高,施工风险大;二是防护桩所处的地质为粉质黏土、硬塑,地基承载力大于250KPa,一般的旋挖钻无法满足钻进需求。经多方对比分析,确定采用KR50型旋挖钻机[4],整机工作高度8.87m,最大钻孔直径1.2m,最大钻孔深度16m,最大输出扭矩50KN ?m,满足现场钻进需求。
3.3 吊车选择
选用一台25T吊车配合钢筋笼下孔,吊装时仅使用第1节主臂配合吊装,起吊角度控制在60°以内,9m×sin60°+1.5m=9.29m<10m(梁底与路面最小净距)。
4 施工方法
4.1 主要施工工艺流程
主要施工工艺流程见图3。.png)
图3 施工工艺流程
4.2 施工准备
4.2.1邻近营业线施工计划报批
由于防护桩紧邻既有武咸城际,施工前按相关文件要求向武汉铁路局上报施工监督计划,获批准后在高铁工务段防护人员全程监护下进行钻孔及钢筋笼吊装等施工作业。
4.2.2沥青路面切割及破除
沿纵向桩中心线往道路中心线方向偏移1.5m洒白灰线,使用直径φ1.0m的切割机切割现有沥青路面(沥青路面结构层为:10cm厚沥青混凝土+40cm厚水泥稳定碎石+20cm厚级配碎石),切割深度不小于20cm,使用破碎头沿切割线破除,将破除的结构层废料装运弃至指定位置。
4.2.3场地平整
采用挖机对防护桩位置进行平整,施工区域宽度不少于3m(以桩基中心连线为中分线)。
4.2.4设备调试
旋挖钻机设备进场后,对行走、旋转、钻进、提升等功能进行调试,试钻并报请监理工程师验收。
4.2.5施工监测
为避免钻机造钻进过程中对城际铁路桥墩振动的影响,在城际297#~305#墩布设监测[5]点,每个桥墩在顶部、底部各布设两个,使用AMS自动变形监测系统实时观测桥墩沉降、倾斜及水平位移,为营业线安全运营及现场施工安全提供可靠指导。
4.3 施工顺序
4.3.1测量放样
使用全站仪放出每段防护桩起始位置,并在桩中心位置设置中心点。
4.3.2埋设护筒
采用60型小挖机配合埋设直径1.0m的钢护筒,埋设后复核桩位。同时在桩周边施做临时排水沟,确保雨水不流入桩内,浸泡软化基底。
4.2.3钻孔
钻机就位后,将钻头与桩中心点对中,开始钻进施工,每钻进0.5m,通过钻头将渣土带出桩孔,旋转90°后倾倒在路面上,渣土及时装车弃运至指定位置。
4.2.4清孔及检孔
为防止孔壁坍塌及地下水软化孔底,成孔后立即清理孔底虚土,检查桩基孔径、孔深及倾斜度,确认无误报请监理工程师验收后下放钢筋笼。
4.2.5吊装钢筋笼
使用简易炮车将钢筋笼倒运至现场,25T吊车占位与城际铁路大致垂直,从远离城际铁路的平行位置吊起钢筋笼,旋转起重臂至桩孔上方后,缓慢下放钢筋笼,下放过程中注意钢筋笼不得触碰孔壁,以免将渣土带至孔底不易清理。
4.2.6浇筑桩基砼
使用串筒配合混凝土浇筑,串筒底距离孔底不大于0.6m,同时使用加长振动棒进行有效振捣,确保防护桩成桩质量。
4.2.7路面开挖及结构层施工
桩基达到设计要求的龄期并经抗压试验合格后进行桩基检测,合格后进行路面开挖,路面结构层、排水沟施工。
4.2.8冠梁及现浇调平层
清理桩头虚土及靠近线路侧外露面桩间土,调整桩头外露钢筋,并对桩头进行凿毛并冲洗,绑扎冠梁钢筋,支模浇筑冠梁先浇段(宽度1m、高度0.5m)。
冠梁[6]施工完成后,将支护桩面侧外露面凿毛、冲洗并植钢筋网,钢筋网伸入冠梁内,钢筋网竖向钢筋顶部水平弯折10cm、并于冠梁预留钢筋绑扎,钢筋网定位之后,采用C30混凝土与冠梁后浇段一并施工调平,与前后相接的重力式挡土墙面侧齐平。
5 施工要点及监测评价
5.1施工要点
(1)由于邻近营业线施工,安全风险大,且施工高度严重受限,选择合适的施工作业机械及施工方法是安全快速施工首要解决的问题。
(2)钢筋笼吊装时应严格控制吊车占位及起升角度(在60°以内),严控起升总高度,使其不危及既有城际铁路桥墩及梁体安全。
(3)防护桩桩头及桩间土体清理及凿毛、植筋等要尤为重视,这关系到连续钢筋混凝土桩整体连接质量及后期道路的安全运营。
5.2监测评价
考虑到紧邻既有城际铁路桥墩,施工振动影响的不确定性,在297#~305#墩布置监测点,施工过程中监测:沉降变形最大1.1mm、横向水平位移最大0.7mm、顺向水平位移最大0.6mm、横向倾斜最大0.05%、顺向倾斜最大0.03%;施工结束后沉降及水平位移最大0.3mm、倾斜0.01%,各测点变化逐渐趋于稳定状态。
6 结束语
城市市政道路交通流量大,现场受限因素多,因此对防护桩施工要求高、难度大,合适机械设备和施工方法的选择是确保施工安全顺利进行的关键。阳光大道东侧防护桩安全施工的顺利实施表明,当地方政府对有人工挖孔明确禁止要求,且现场作业受限因数(比如邻近铁路,施工高度受限)也较大的情况下,采用合适高度旋挖钻机的方案优势明显,其工序简单,不仅降低了施工难度,增加了施工安全性,还有效缩短了施工工期,低高度旋挖钻机的应用,对今后类似低限界情况下防护桩施工具有良好的借鉴作用。
参考文献
[1] 黄雄军 王兴国. 跨高速铁路桥梁基础防护桩设计与施工. 工业安全与环保,2015(8):1-3、17.
[2] 宗斌. 人工挖孔桩在复杂环境里的施工工艺及其控制要点. 建筑技术,2016(12):62-63.
[3] 肖罗发. 浅谈城市主干道施工期间交通导行的方法. 建筑建材装饰,2015(12):220-221.
[4] 许首贤. 谈钻孔桩(旋挖钻)施工方法. 山西建筑,2013(3):53-54.
[5] 阿苦建英. 基于GPS的桥梁变形监测和数据处理. 福建质量管理,2018(7):168.
[6] 武汉市公路勘察设计院,阳光大道改建路基支挡、防护工程设计图,武汉:2018
论文作者:冯贺杰
论文发表刊物:《建筑实践》2020年01期
论文发表时间:2020/4/27
标签:防护论文; 钢筋论文; 城际论文; 钻孔论文; 钻机论文; 铁路论文; 阳光论文; 《建筑实践》2020年01期论文;
